$649,900
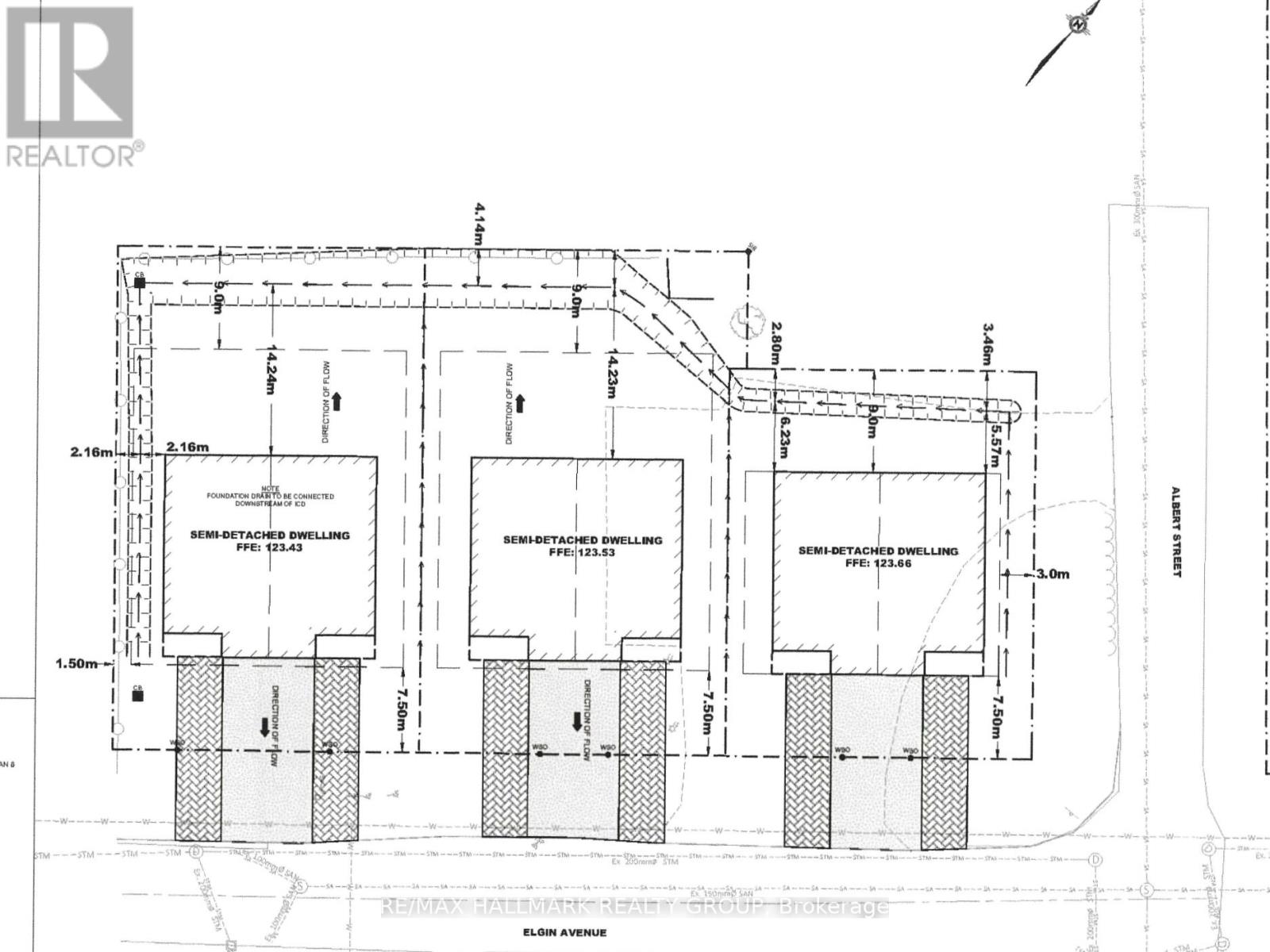
NEW DEVELOPMENT OPPORTUNITY!! Site Plan for 6 SEMI-DETACHED Bungalow Homes with each home designed to include a lower level Secondary Dwelling! A total of 12 DWELLINGS on 6 LOTS. Approx. 255' of street frontage! Located blocks from the Hospital, River, Convenience Store, Tim Hortons, Wendy's and the main Street! Sales includes the Architect Plans and Site Studies. Gas, Hydro, Water and Sewer at the street. Currently zoned CF and requires a zoning Bi-Law amendment to Residential. Newer Back Fence and cleared LOT! Do your due diligence, and see the opportunities. CALL TODAY!! (id:50982)
Ask About This Property
Get more information or schedule a viewing today and see if this could be your next home. Our team is ready to help you take the next step.
Details
| MLS® Number | X12181887 |
| Property Type | Vacant Land |
| Community Name | 540 - Renfrew |
| No Garage |
| Acreage | No |
| Size Depth | 255 Ft ,2 In |
| Size Frontage | 98 Ft |
| Size Irregular | 98.01 X 255.19 Ft |
| Size Total Text | 98.01 X 255.19 Ft|1/2 - 1.99 Acres |
| Cable | Available |
| Electricity | Available |
| Sewer | Available |









