- 1,700 ft2
- Fully Air Conditioned
- Forced Air
$10,000 Monthly
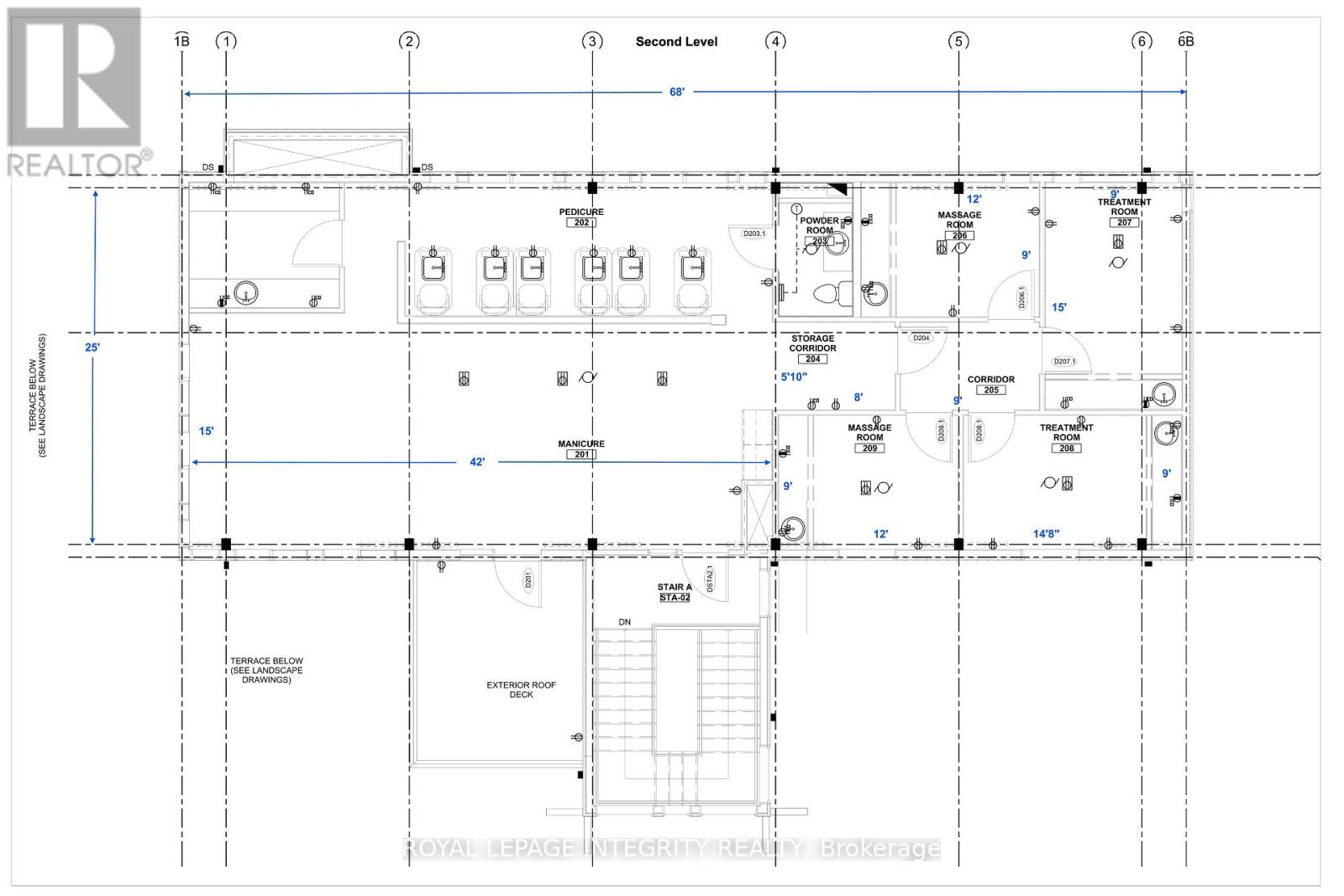
A stunning, fully equipped day spa facility is available for sublease on the beautiful Strathmere events venue estate in South Ottawa. Perfect for a growing beauty business or an entrepreneur seeking a ready-to-operate space with no start-up costs, this turn-key opportunity offers everything needed to begin operating immediately. The 1,700 sq. ft. second-floor spa features four private treatment rooms, a private washroom, a storage area, and a bright open-concept retail space with vaulted ceilings. All existing furniture and equipment are included at no additional cost, including manicure and pedicure stations, massage tables, and aesthetics equipment. A cozy client lounge area and private outdoor patio provide a relaxing atmosphere, while ample free on-site parking ensures convenience for guests. Set within a tranquil country estate just minutes from the city, the location also offers access to a charming café and day spa on the ground floor, where clients can enjoy food and refreshments before or after their treatments. The sublease runs until the end of 2028 with an option to extend, at a monthly rent of $10,000 inclusive of utilities and operating costs, plus HST. This is a rare and truly turn-key spa opportunity in one of Ottawa's most picturesque and desirable settings. (id:50982)
Ask About This Property
Get more information or schedule a viewing today and see if this could be your next home. Our team is ready to help you take the next step.
Business
| Business Type | Personal Services |
| Business Sub Type | Health Centre |
Details
| MLS® Number | X12484328 |
| Property Type | Retail |
| Community Name | 8006 - Rideau Twp W of Hwy 16 North of Reg Rd 6 |
| Features | Irregular Lot Size |
| Cooling Type | Fully Air Conditioned |
| Heating Fuel | Natural Gas |
| Heating Type | Forced Air |
| Size Interior | 1,700 Ft2 |
| Acreage | No |
| Size Depth | 691 Ft |
| Size Frontage | 622 Ft |
| Size Irregular | 622 X 691 Ft |
| Size Total Text | 622 X 691 Ft |
| Zoning Description | Rc[56]r |























































































